Skip to content
Alec Delapre
Pottery, Prints, Paintings, Theatre Design and Redcollie Stretchers
Menu
ALEC DELAPRE
Contact
Blog
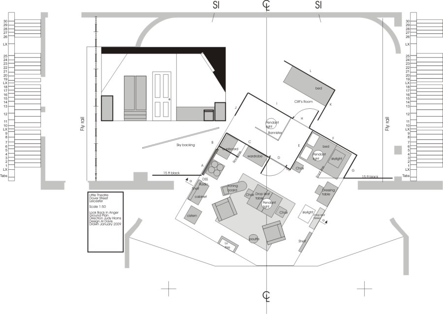
Look Back In Anger
Like
Loading...
Leave a comment
Cancel reply
Δ
Post navigation
Published in
Theatre
Alec Delapre
Sign up
Log in
Copy shortlink
Report this content
Manage subscriptions
%d